School in Porto Salvo

Oeiras, Portugal

2021 - 2021

Project Date
2021

Area
Interventioned Area: 7 120 M²

Project Team
José Martinez | Marcelo Dantas | João Graça | Inês Mota | Nelson Augusto

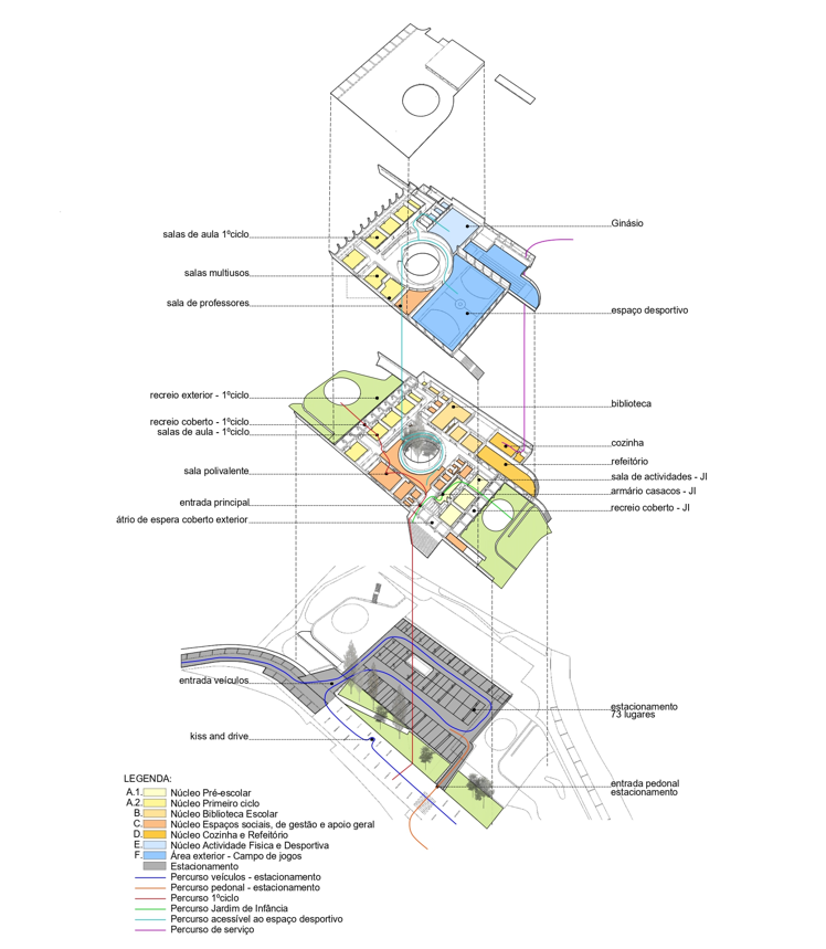
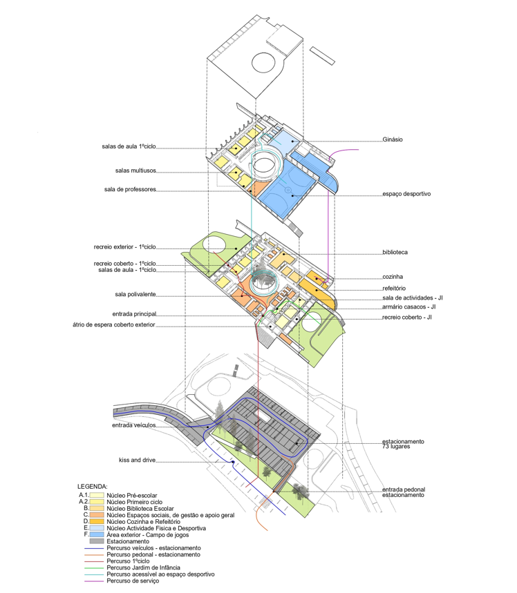
Project Description
This School emerges in the midst of a forest - a garden that embraces it, protects it, and assumed itself as a balancing factor in attenuating solar radiation, providing better comfort conditions. The ancestral organization of circulations in the form of a cloister, punctuated by a strong influx of light, is the most suitable configuration for organizing the various functional areas of the school. A cloister, a central garden, an accessible path that develops in a circle around the courtyard, this poposal condenses the functional areas of the school, integrates the playgroung area on the roof, and frees up space around the building, increasing the public area, which through a green surrounding provides seating areas and inviting pathways.