Housing Building in Alcochete

Alcochete, Portugal

2024 - 2024

Project Date
2024

Construction Date
-

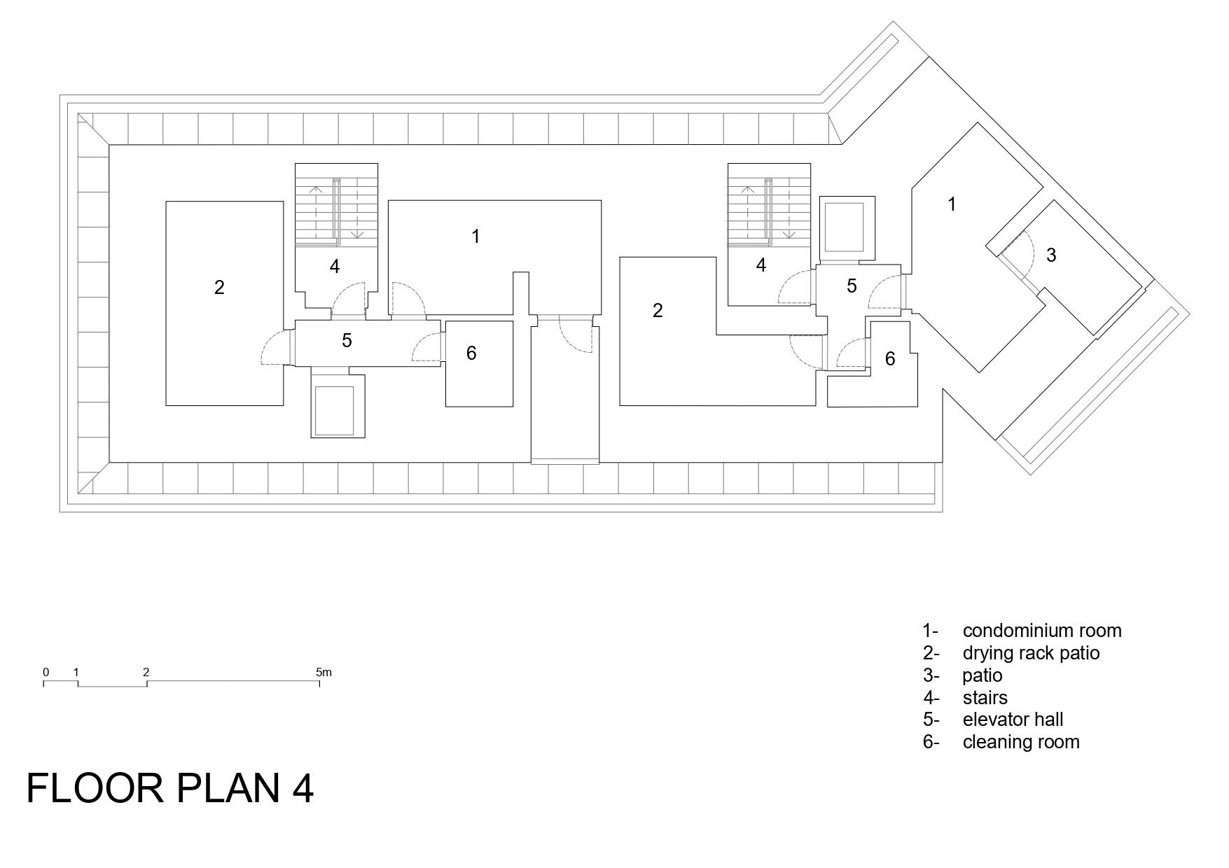
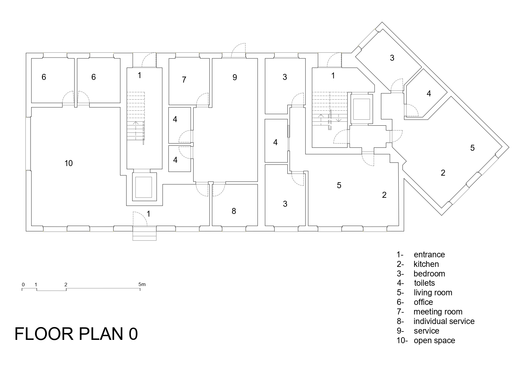
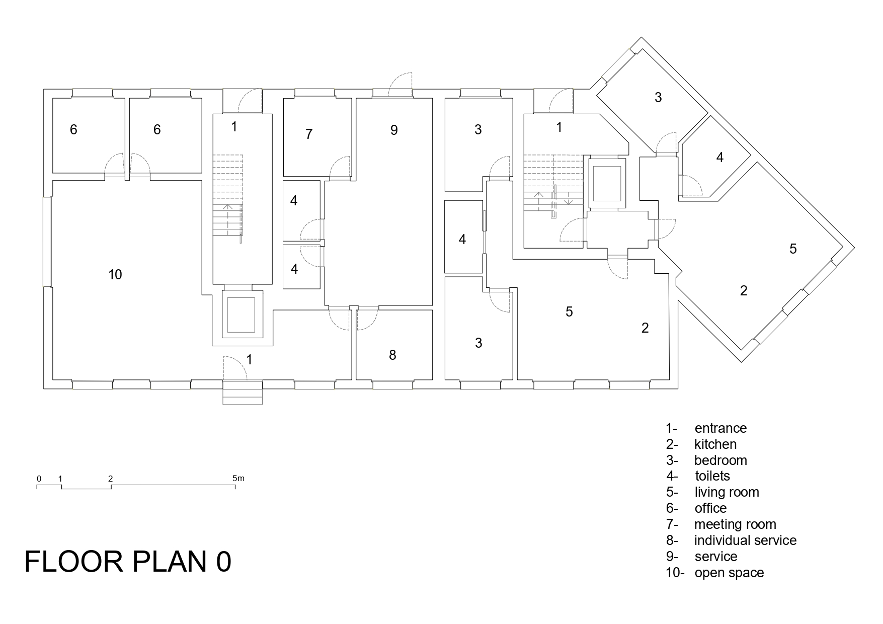
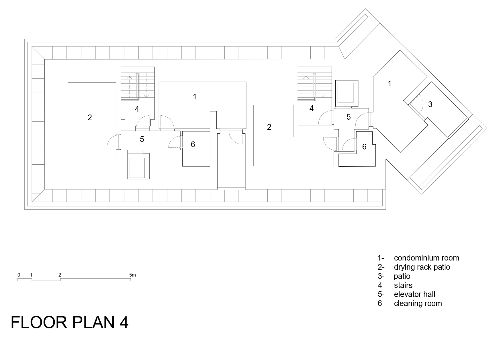
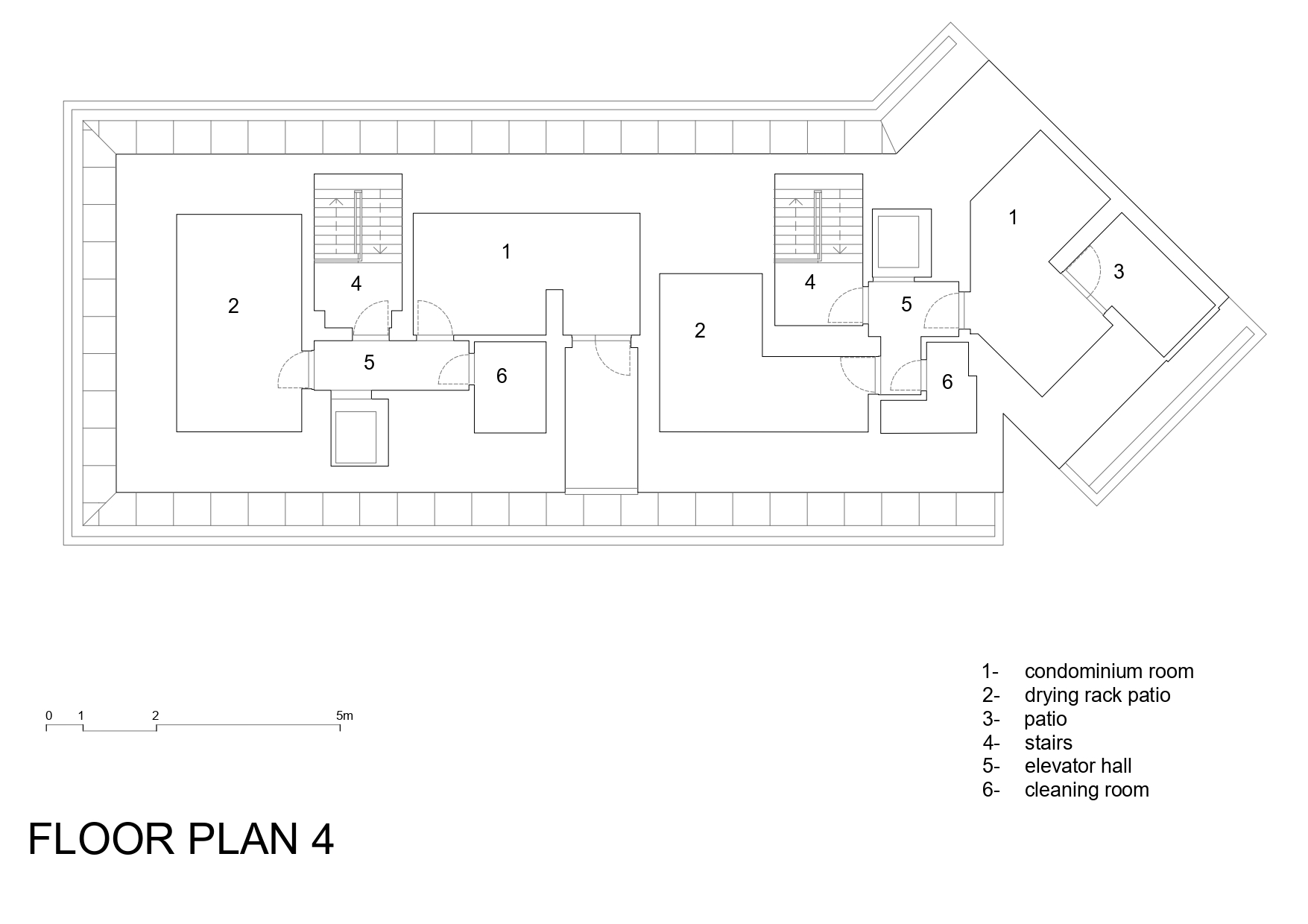
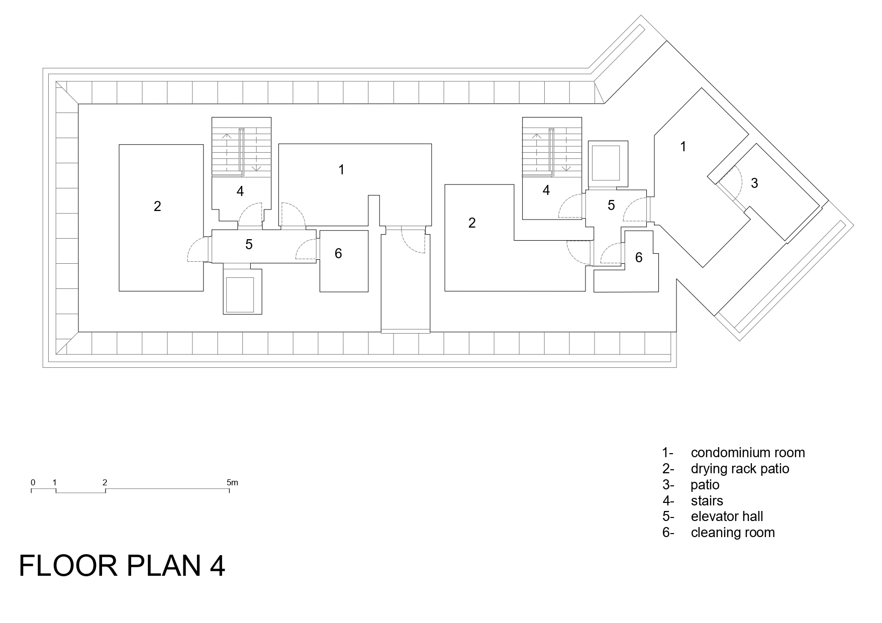
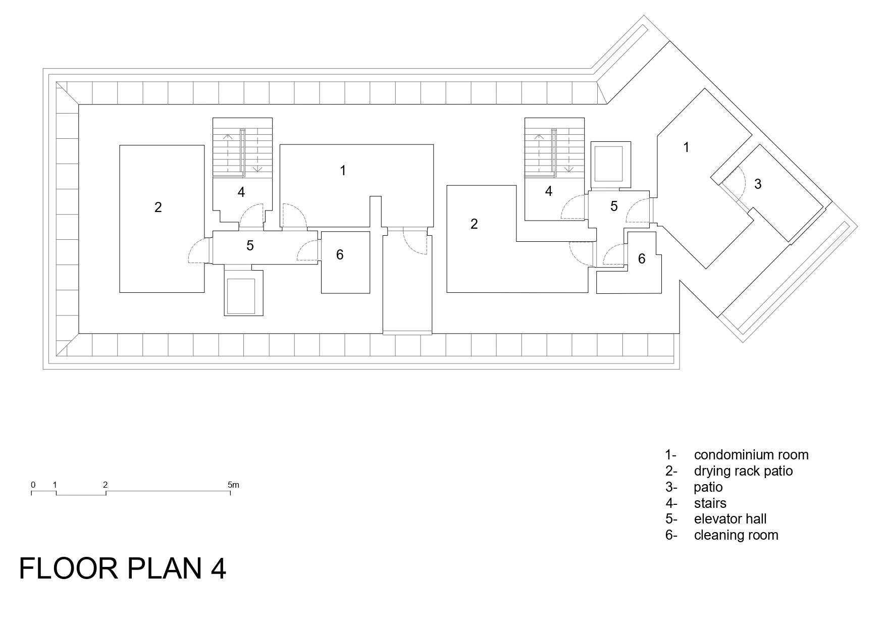
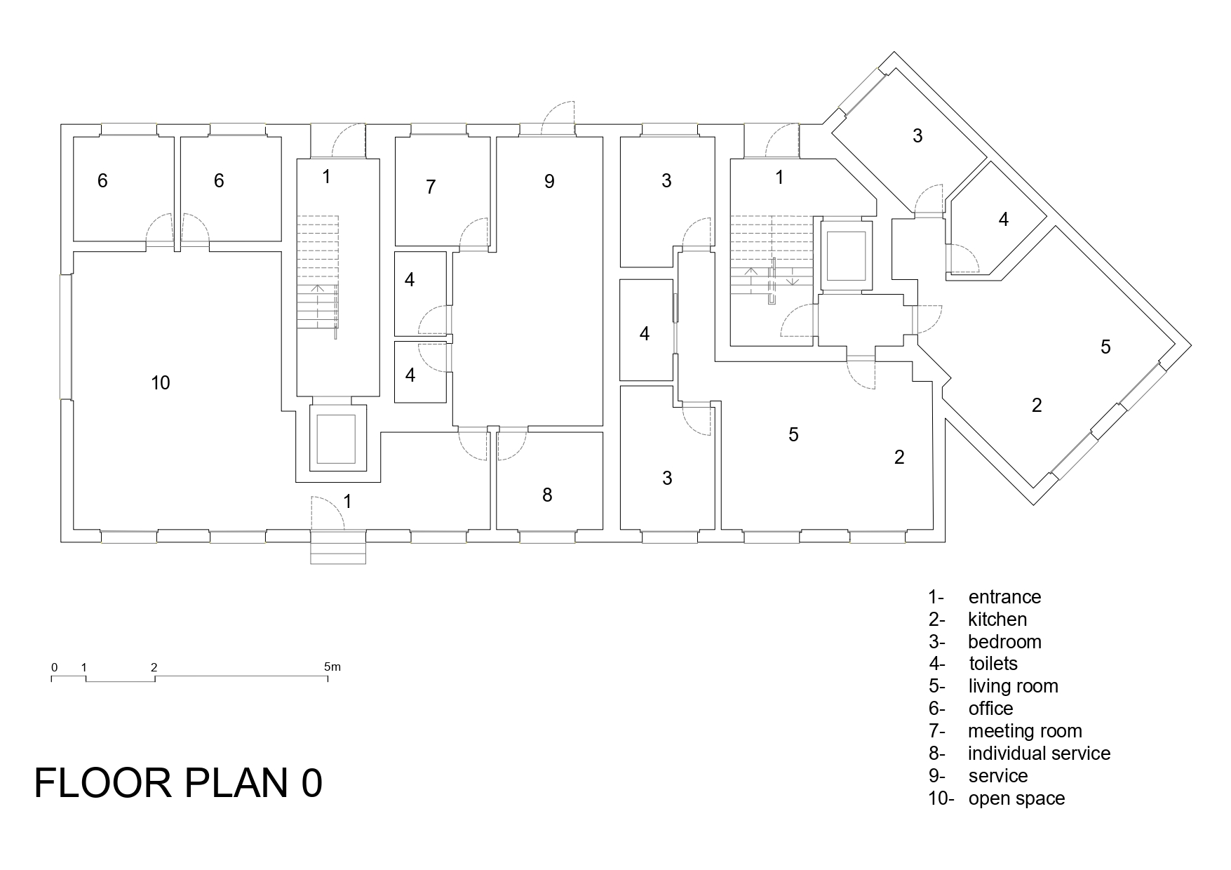
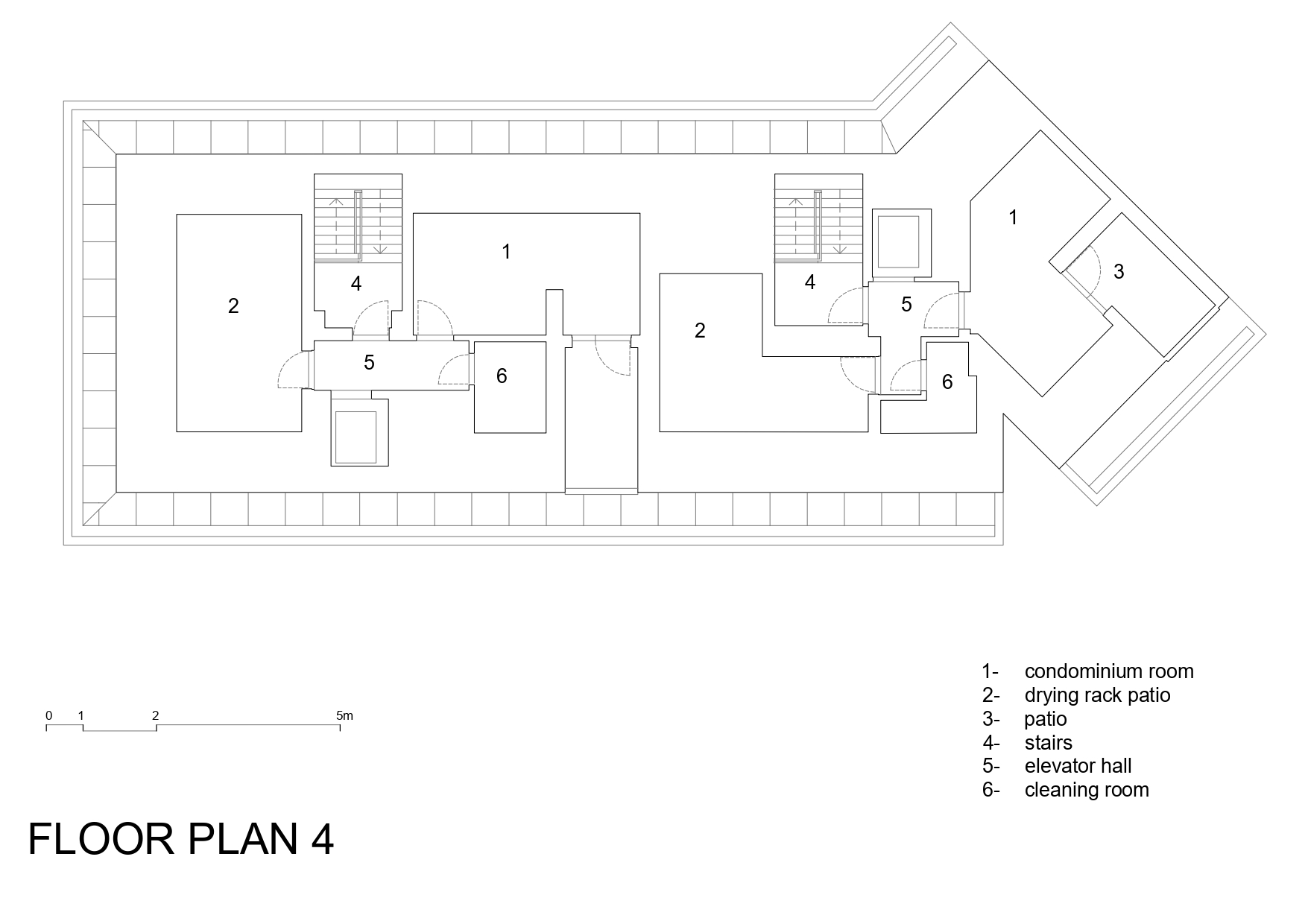
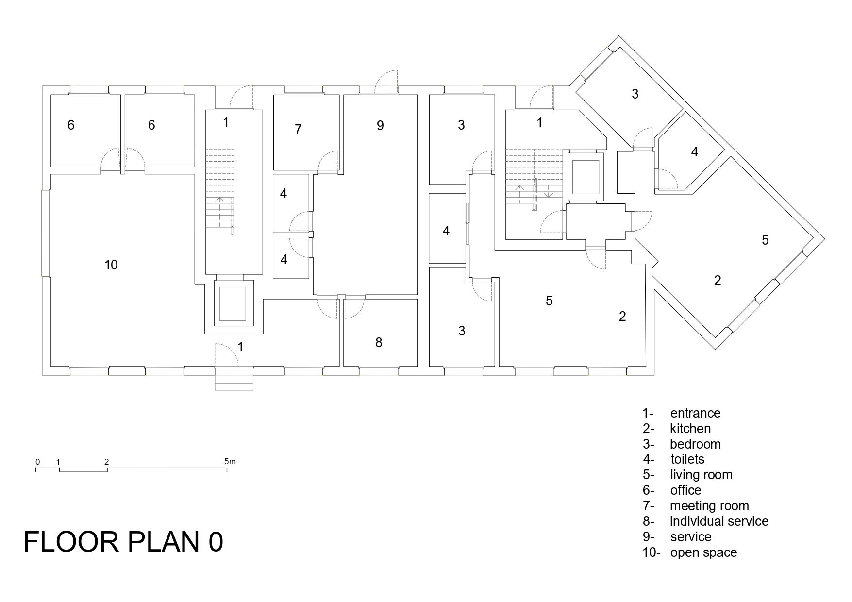
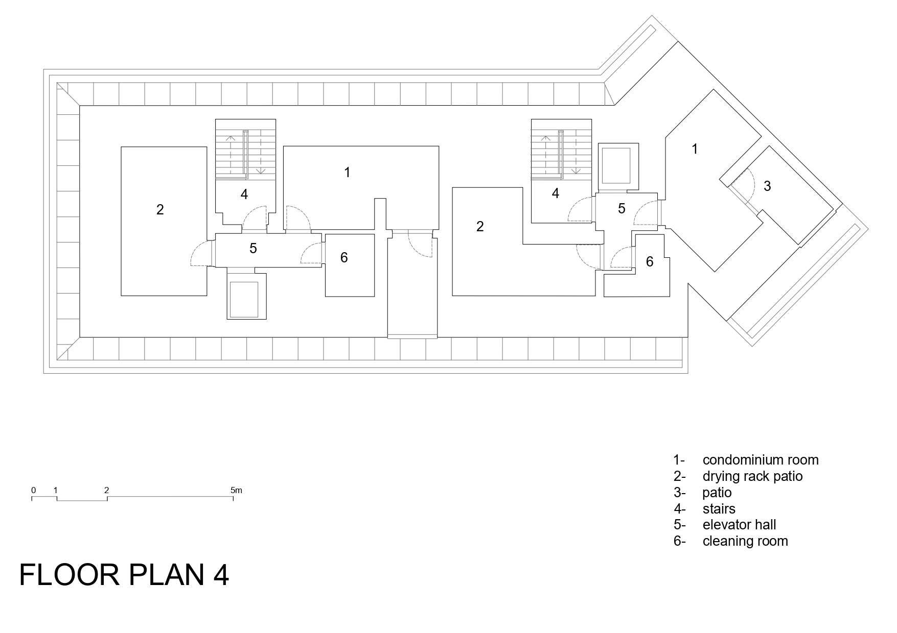
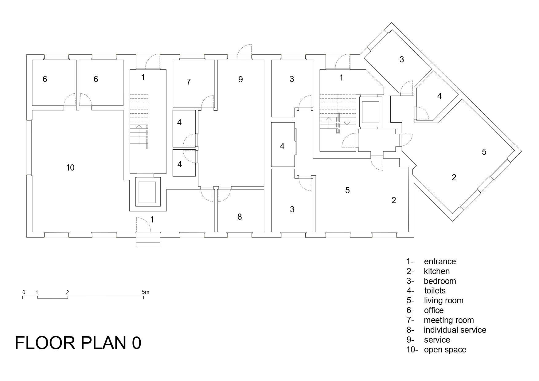
Area
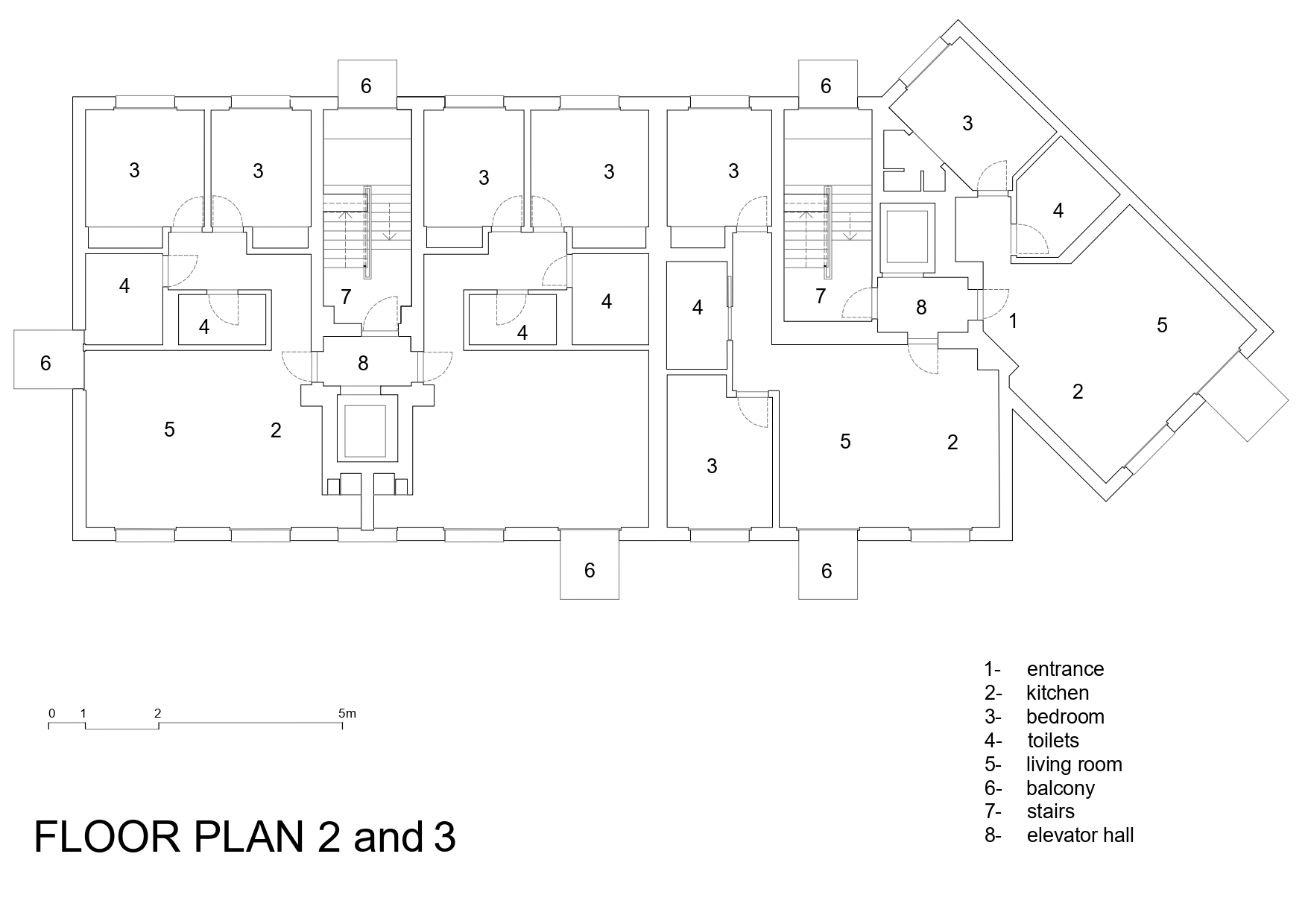
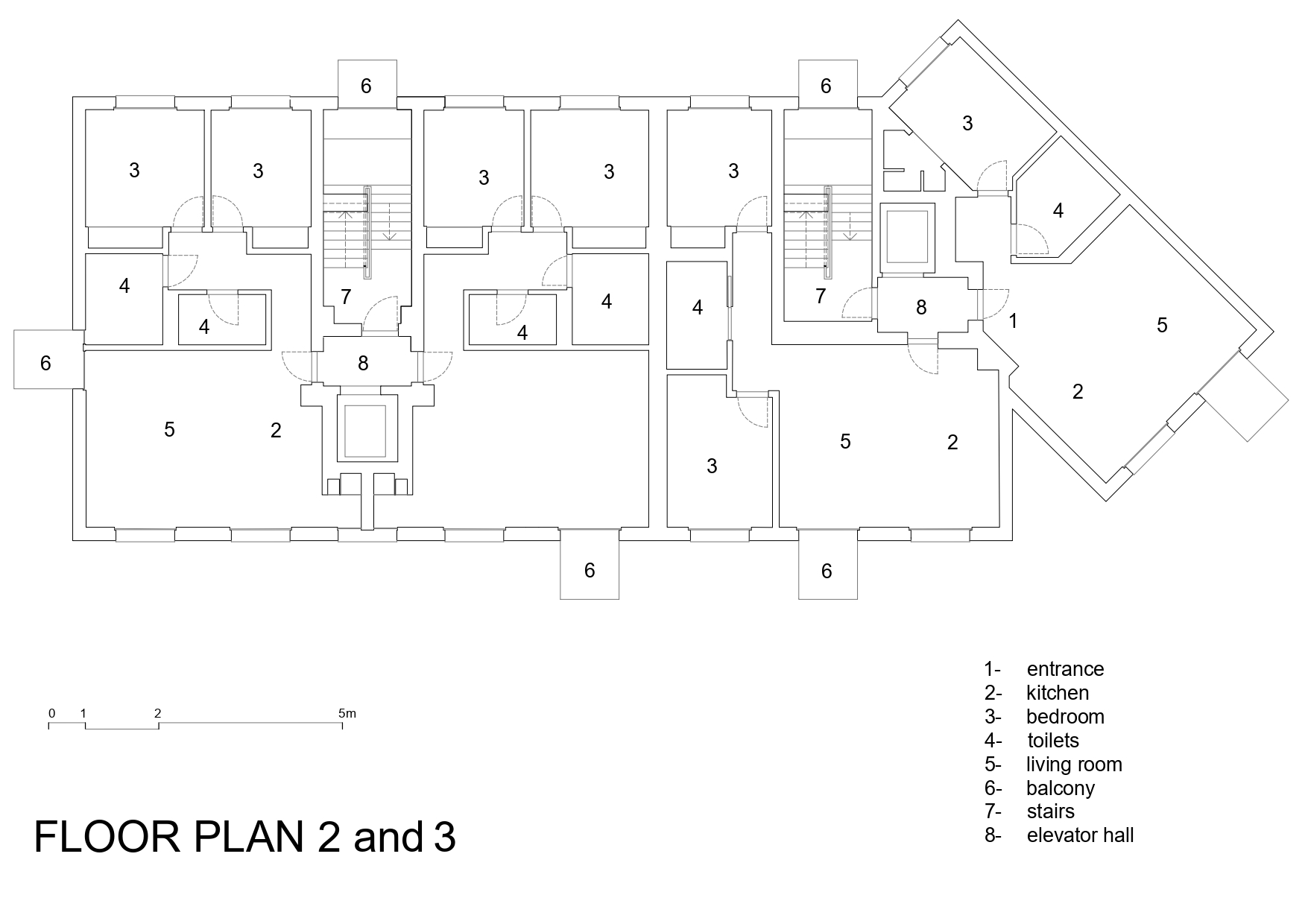
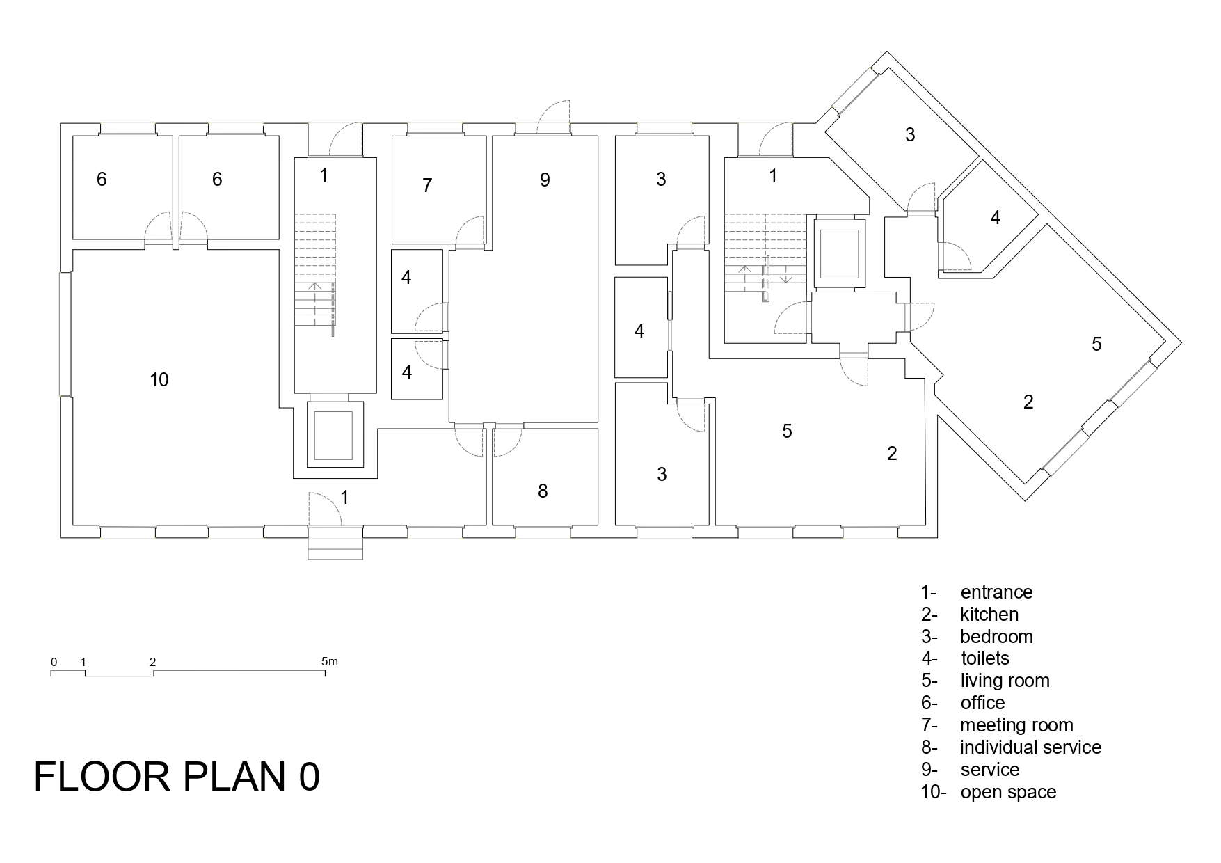
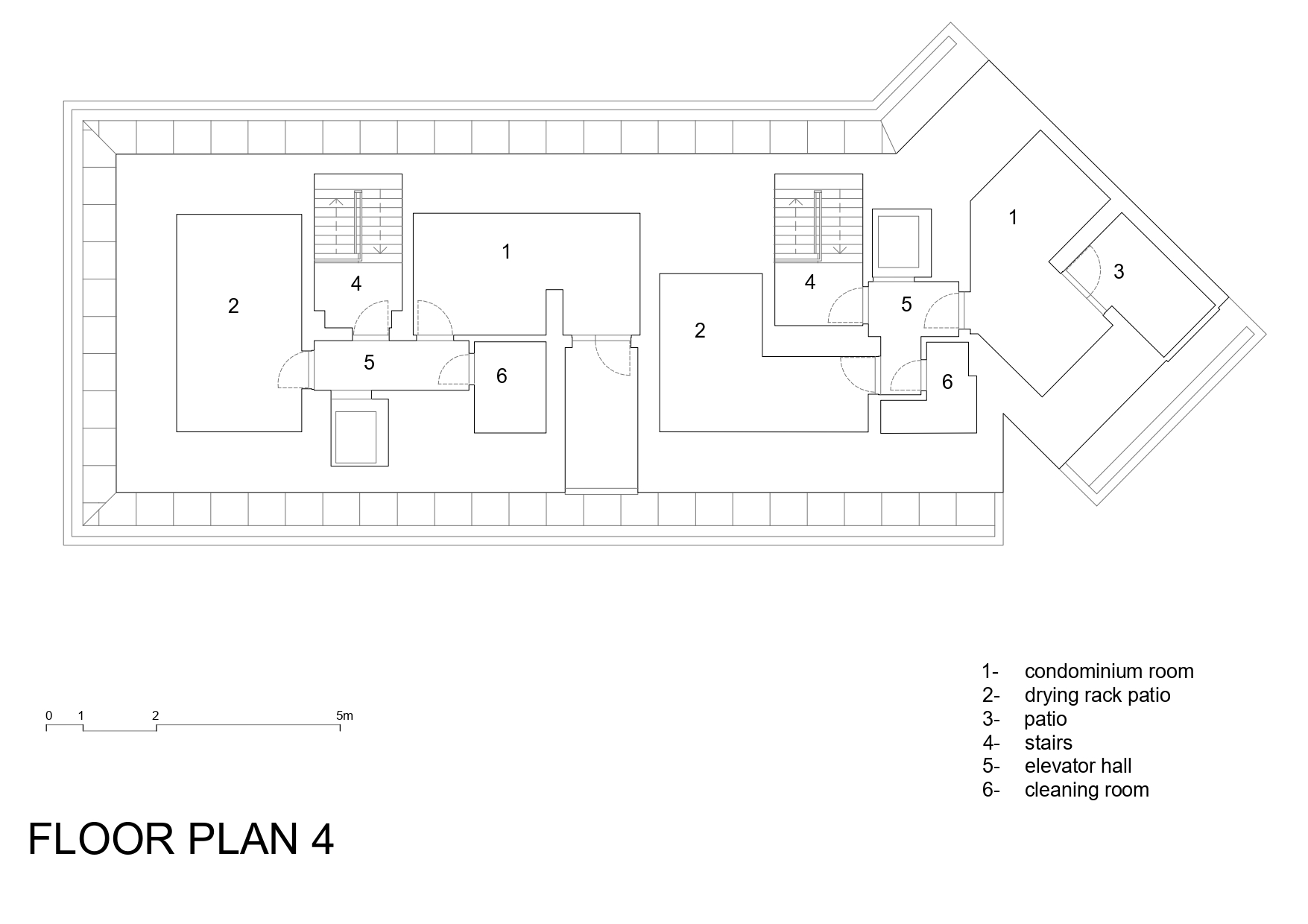
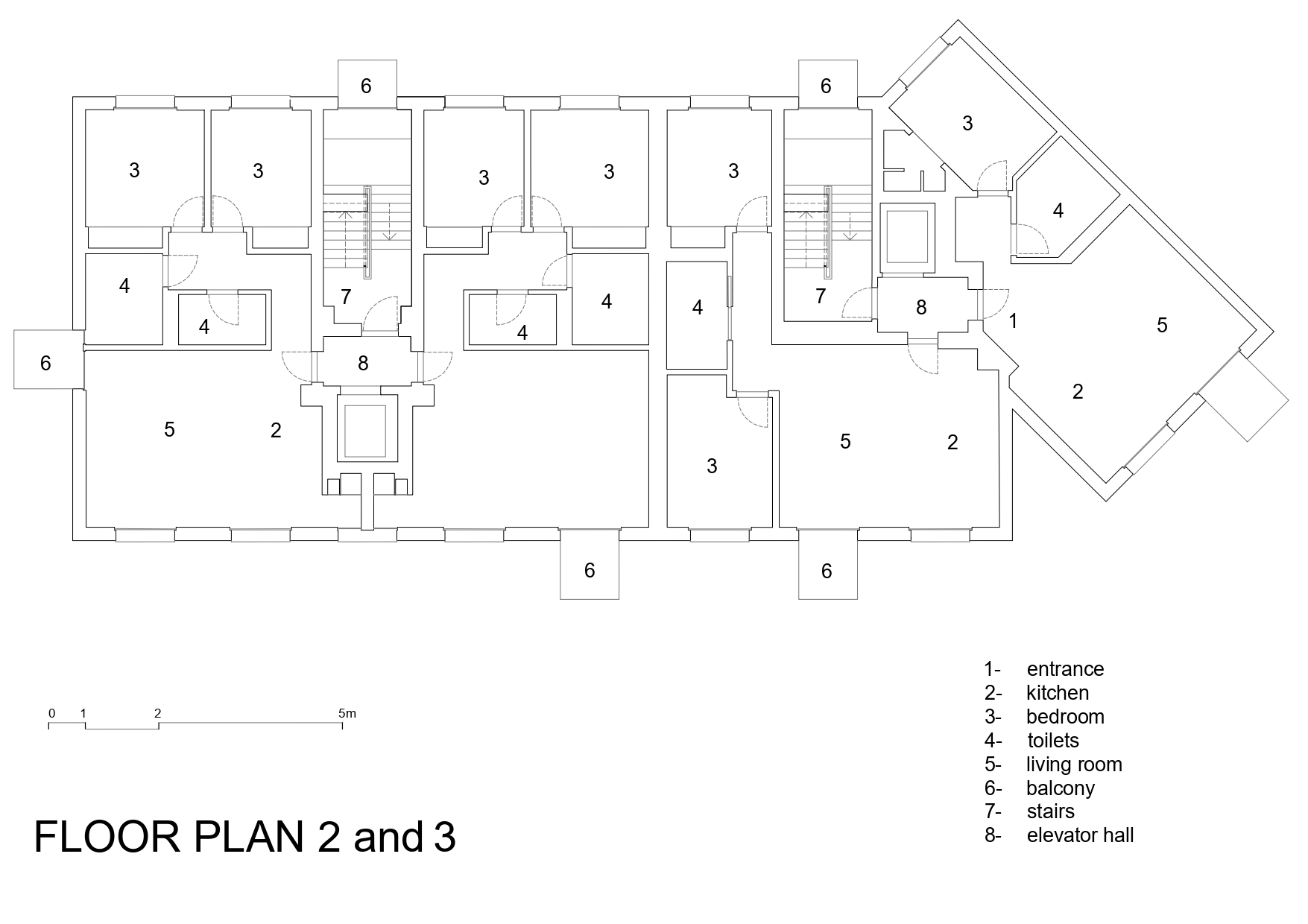
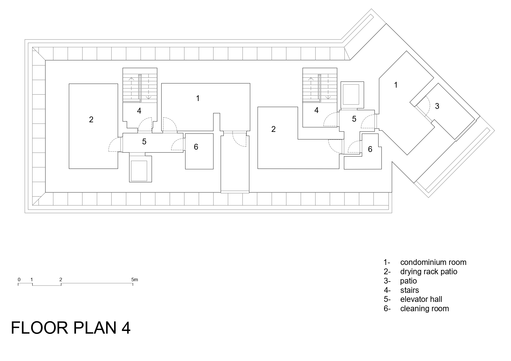
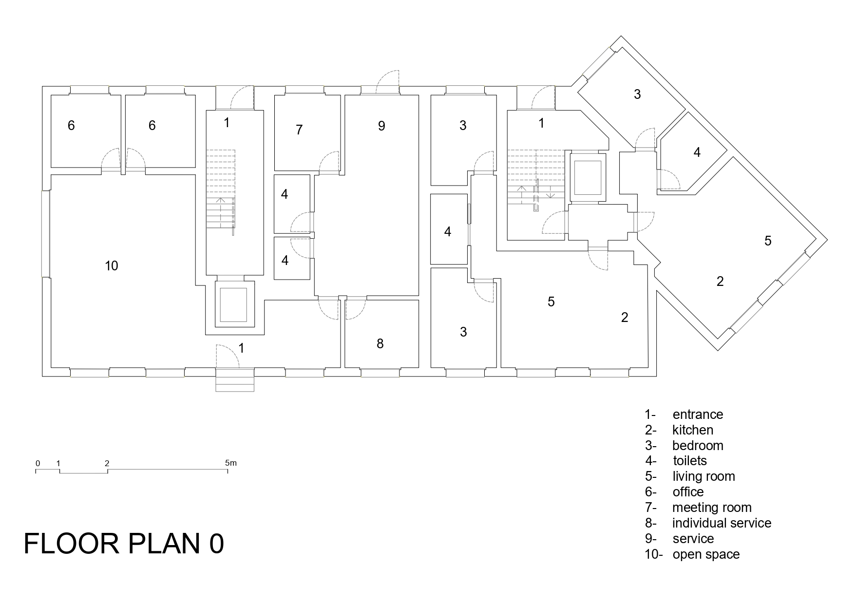
Construction Area: 1.410,20 M²

Project Team
José Martinez | João Graça

Project Description

Conditioned by the rigidity of the Municipal Allotment Plan, which defines alignments and volumes, as well as a dated image of the pre-existing structures, two buildings are shaped and integrated into the constructed surroundings, presenting themselves as a uniform and homogeneous Block that does not reveal façades or roofs, offering a unique, contemporary and innovative image.

Harmonized by materiality, color, and texture, all planes - whether vertical, horizontal, or sloped - construct a light gray volume, punctuated by openings, which are also identical and maintain the same proportion.